Système MB-78 EI DPA - Cloisons coupe-feu avec porte coulissante automatique.

MB78EI DPA
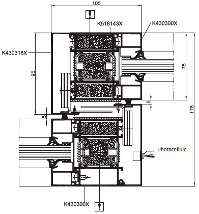
MB78 EI DPA Porte coulissante

Porte coulissante

  • MB78 EI DPA Porte coulissante

    Porte coulissante

MB78EI DPA Représentation

Le Système MB-78 EI DPA permet des constructions de menuiseries intérieures et extérieures d’ensemble complet fixe avec simple ou double portes automatiques coulissantes sur base du système MB-78EI.

Description et caractéristiques :
  • Profilé Aluminium avec rupture de pont thermique de 34mm, épaisseur 78mm, série à 3chambres.
  • Inserts dans les profilés de matériaux ininflammables et bandes intumescentes sur la périphérie de ceux-ci.
  • Parcloses Aluminium adaptées à l’épaisseur des vitrages.
  • Accessoires Acier pour protection et maintien du verre en cas d’incendie.
Remplissage :
  • Utilisation de tous types de vitrages et panneaux résistants au feu et classés EI15 à EI 30. Epaisseur de 16 mm à 30 mm.
Finition :
  • Anodisé (naturel, or, bronze, noire).
  • Thermolaqué selon la gamme RAL, structuré, métallisée ou fine structure.
  • Suivant votre degré de finition, de votre code poudre, d’une peinture liquide, d’un traitement spécial de coloration nous pouvons répondre à votre demande.
  • Traitement de surface anti-corrosif adapté au milieu chloré ou salin.
Support et mise en oeuvre :
  • Pose dans cloisons légères, voile béton, béton cellulaire et maçonnerie.
  • Fixation par pattes ou par vis auto-perforantes.
  • Périphérique, bourrage de laine minérale.
  • Couvre joints ou plats de finitions en Aluminium.
  • Joint de silicone neutre.
Technique :

Dimension mini et maxi, épaisseur profil, et coupe technique veuillez télécharger notre fiche produit.

Classes Résistances
Résistance au feu
EW15 EI30
EN 13501-2
Résistance à l'eau
Classe 5A
PN-EN 12208-2001
Étanchéité à l'air
Classe 2
PN-EN 12207-2001
Affaiblissement acoustique
Acoustique
41 dB (val. Rw)
Déperdition thermique
Uw
A partir 1,6 W/(m²k)

Agréations
ITB
AT-15-6006-2016


Futurium sprl

Rue de lonnoux 5
6880 Bertrix (Belgique)

Numéro d'entreprise : BE-0723.629.502

siège social futurium

 

 

 

 

 mobile bleu   +352 661.119.236
mail bleu  Cette adresse e-mail est protégée contre les robots spammeurs. Vous devez activer le JavaScript pour la visualiser.

Newsletters

Veuillez activer le javascript sur cette page pour pouvoir valider le formulaire


Copyright © Futurium - 2019