Système MB-86 EI - Fenêtres coupe-feu.

MB86EI
MB86EI Coupe 3D

Coupe 3D

MB86EI Coupe 3D

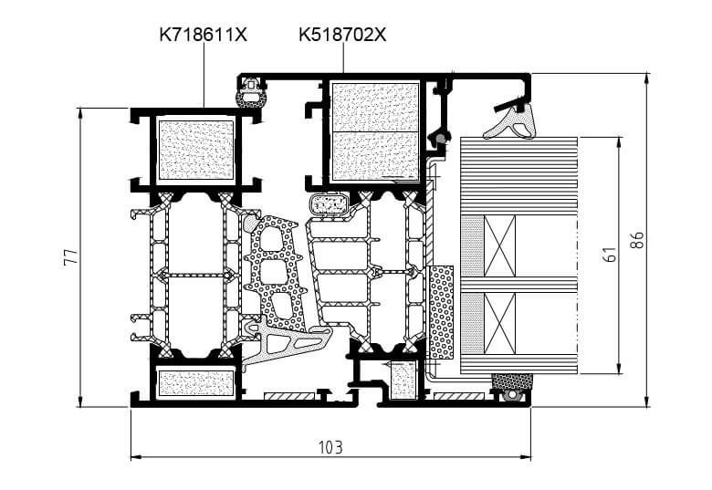
Coupe profil

  • MB86EI Coupe 3D

    Coupe 3D

  • MB86EI Coupe 3D

    Coupe profil

MB60E-EI Représentation

Le Système MB-86 EI permet des constructions de fixe, simple et double ouvrant basé sur le système MB-86, qui se caractérise par de très hautes performances thermiques et acoustiques.
A ce jour uniquement le «Rapport d’essai Nederland» est disponible.

Description et caractéristiques :
  • Profilé Aluminium avec rupture de pont thermique de 42mm ou 43mm, épaisseur 77mm pour le dormant et 86mm pour l’ouvrant.
  • Inserts dans les profilés de matériaux ininflammables et bandes intumescentes sur la périphérie de ceux-ci.
  • Parcloses Aluminium adaptées à l’épaisseur des vitrages.
  • Accessoires Acier pour protection et maintien du verre en cas d’incendie.
  • Quincaillerie utilisée est généralement de type RC2.
Remplissage :
  • Utilisation de tous types de vitrages simple, double, triple et panneaux résistants au feu et classés EI 30. Epaisseur de 13mm à 61mm pour le dormant et de 22mm à 70mm pour l’ouvrant.
Finition :
  • Anodisé (naturel, or, bronze, noire).
  • Thermolaqué selon la gamme RAL, structuré, métallisée ou fine structure.
  • Suivant votre degré de finition, de votre code poudre, d’une peinture liquide, d’un traitement spécial de coloration nous pouvons répondre à votre demande.
  • Traitement de surface anti-corrosif adapté au milieu chloré ou salin.
Support et mise en oeuvre :
  • Pose dans cloisons légères, voile béton, béton cellulaire et maçonnerie.
  • Fixation par pattes ou par vis auto-perforantes.
  • Périphérique, bourrage de laine minérale.
  • Couvre joints ou plats de finitions en Aluminium.
  • Joint de silicone neutre.
Technique :

Dimension mini et maxi, épaisseur profil, et coupe technique veuillez télécharger notre fiche produit.

Classes Résistances
Résistance au feu
EI30
Étanchéité à l'air
Classe 4
EN 12207
Résistance à l'eau
Classe E1500
EN 12208
Résistance au vent
Classe 5
EN 12210
Déperdition thermique
Uw
0.86 W/(m²k)

Agréations
ITB
1036/18/R360NZP


Futurium sprl

Rue de lonnoux 5
6880 Bertrix (Belgique)

Numéro d'entreprise : BE-0723.629.502

siège social futurium

 

 

 

 

 mobile bleu   +352 661.119.236
mail bleu  Cette adresse e-mail est protégée contre les robots spammeurs. Vous devez activer le JavaScript pour la visualiser.

Newsletters

Veuillez activer le javascript sur cette page pour pouvoir valider le formulaire


Copyright © Futurium - 2019